Phân loại máy bơm nước giếng khoan
Máy bơm giếng khoan là dòng máy bơm nước có đường kính nhỏ, chiều sâu lớn. Tùy từng kiểu giếng khoan hoặc mục đích sử dụng mà chúng ta nên chọn máy bơm giếng khoan có đường kính và chiều sâu nhất định. Hotline: 0905.068.988
Lý do lựa chọn máy bơm tăng áp Wilo?
Máy bơm tăng áp Wilo là dòng máy bơm tăng áp tự động hay còn gọi máy bơm tăng áp điện tử. Và theo đánh giá của người tiêu dùng, máy bơm nước Wilo hiện đang là dòng máy bơm nước gia đình khỏe nhất hiện nay, được sản xuất theo công nghệ của Đức, đảm bảo về chất lượng, công suất ổn định, độ bền cao
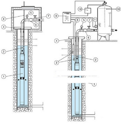
Tìm hiểu về máy bơm nước giếng khoan
Máy bơm giếng khoan bao gồm 2 phần chính: buồng bơm và buồng động cơ. 2 bộ phận này được gắn với nhau nhờ các bu long bơm. Mọi thắc mắc liên hệ theo hotline: 0905.068.988 để được tư vấn và giải đáp
Giới thiệu máy bơm nước bán chân không Tiến Phát Rollstar Z100 (750W)
Máy bơm nước bán chân không Tiến Phát Rollstar Z100-750W là dòng máy bơm đầu lớn, máy bơm ly tâm tự hút. Đây là một trong những loại máy bơm thuộc dòng máy bơm dân dụng được sử dụng nhiều trong các hộ gia đình với nguồn nước sách không chứa các chất ăn mòn hoặc các hạt mài mòn
Máy bơm tăng áp Wilo PW-251E (không có bình áp)
Máy bơm tăng áp Wilo PW-251E (không có bình áp) là dòng máy bơm tăng áp tự động với áp lực cao và hút sâu với lưu lượng lớn. Hạnh Cường: 554 Trường Chinh – Đống Đa – Hà Nội. Hotline: 0905.068.988. cam kết bán hàng đúng chất lượng, chính hãng, giá cả cạnh tranh, bảo hành chính hãng, nhanh chóng
So sánh máy bơm nước Hanil và máy bơm nước Wilo
Máy bơm nước Wilo và máy bơm nước Hanil hiện là 2 dòng máy bơm nước nhập khẩu nguyên chiếc từ Hàn Quốc, Đa dạng về chủng loại và mẫu mã, Được thiết kế với kiểu dáng nhỏ gọn, tiết kiệm diện tích, dễ dàng lắp đặt, Chất lượng ổn định, vận hành êm ái, Tuổi thọ cao
So sánh 10 loại máy bơm nước gia đình chất lượng có công suất 100W-150W (Phần 2)
So sánh 10 loại máy bơm nước gia đình chất lượng có công suất 100W-150W. Hotline: 0905.068.988
So sánh 10 loại máy bơm nước gia đình chất lượng có công suất 100W-150W (Phần 1)
So sánh 10 loại máy bơm nước chất lượng có công suất 100W-150W. Hotline: 0905.068.988
Địa điểm mua máy bơm nước Hanil chính hãng tại Hà nội
Máy bơm nước Hanil là dòng máy bơm tiêu biểu được nhập khẩu nguyên chiếc từ Hàn Quốc. Trên thị trường Việt Nam, máy bơm nước Hanil gồm các dòng máy bơm chính sau: máy bơm tăng áp Hanil, máy bơm chân không, bơm hút giếng khoan, máy bơm chìm nước thải
Những lưu lý khi lựa chọn máy bơm nước Pentax
Máy bơm Pentax có rất nhiều chủng loại như: máy bơm ly tâm, máy bơm giếng khoan, máy bơm trục ngang Pentax… với mục đích bơm bù áp hoặc bơm nồi hơi nên chọn máy bơm trục đứng Pentax, bơm nước thải thì chọn máy bơm nước thải Pentax…
Hướng dẫn phân biệt máy bơm trục đứng Pentax chính hãng
Những dấu hiệu dễ nhận biết được đâu là máy bơm trục đứng Pentax thật, đâu là máy bơm trục đứng Pentax giả: vỏ thùng, tem nhãn, thân bơm, đáy bơm,chân bơm... Hạnh Cường – 554 Trường Chinh, Đống Đa, Hà Nội – hotline: 0905.068.988 – Web: dienmay554.com
Hướng dẫn cách lắp đặt máy bơm nước Pentax
Lắp đặt máy bơm nước Pentax như thế nào để đúng kỹ thuật, đảm bảo công suất làm việc và an toàn khi hoạt động thì không phải ai cũng biết. Dưới đây là một vài hướng dẫn lấp đặt máy bơm nước Pentax. Hotline: 0905.068.988





















































































